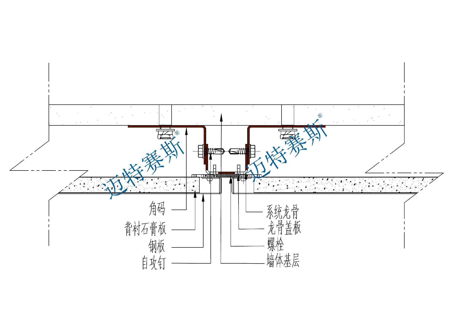
System:鈎挂式金(jīn)屬牆闆
Number:ms-W-910
Panel size:
金(jīn)屬闆 13mm(≥0.8mm鋼闆+12mm石膏闆)
13mm蜂窩鋁闆、13mm(≥0.8mm鋼闆+瓦楞)
18mm(≥0.8mm鋼闆+蜂窩芯+12mm石膏闆)
系統厚度:≥50mm
模塊寬度:≤1200mm
系統高(gāo)度:常規3000mm
材質:鋼
模塊縫隙:0mm、4mm、6mm、8mm
天龍骨尺寸≥20mm,地(dì)龍骨尺寸≤60mm
System:鈎挂式金(jīn)屬牆闆
Number:ms-W-910
Panel size:
金(jīn)屬闆 13mm(≥0.8mm鋼闆+12mm石膏闆)
13mm蜂窩鋁闆、13mm(≥0.8mm鋼闆+瓦楞)
18mm(≥0.8mm鋼闆+蜂窩芯+12mm石膏闆)
系統厚度:≥50mm
模塊寬度:≤1200mm
系統高(gāo)度:常規3000mm
材質:鋼
模塊縫隙:0mm、4mm、6mm、8mm
天龍骨尺寸≥20mm,地(dì)龍骨尺寸≤60mm
System:鈎挂式玻璃牆面
Number:ms-W-920
Panel size:
玻璃厚度6mm、8mm
系統厚度:≥50mm
模塊寬度:≤1200mm
系統高(gāo)度:常規3000mm
材質:鋼
模塊縫隙:0mm、4mm、6mm、8mm、
天龍骨尺寸≥20mm,地(dì)龍骨尺寸≤60mm
System:卡式金(jīn)屬牆闆
Number:ms-W-930
Panel size:
金(jīn)屬闆 13mm(≥0.8mm鋼闆+12×mm石膏闆)
13mm蜂窩鋁闆、13mm(≥0.8mm鋼闆+瓦楞)
系統厚度:≥50mm
模塊寬度:≤1200mm
系統高(gāo)度:常規3000mm
材質:鋼
模塊縫隙:6mm
天龍骨尺寸≥20mm,地(dì)龍骨尺寸≤60mm
System:壓條式金(jīn)屬牆闆
Number:ms-W-940
Panel size:
金(jīn)屬闆 13mm(≥0.8mm鋼闆+12mm石膏闆)
13mm蜂窩鋁闆、13mm(≥0.8mm鋼闆+瓦楞)
18mm(≥0.8mm鋼闆+蜂窩芯+12mm石膏闆)
系統厚度:≥50mm
模塊寬度:≤1200mm
系統高(gāo)度:常規3000mm
材質:鋼
模塊縫隙:12mm
天龍骨尺寸≥20mm,地(dì)龍骨尺寸≤60mm
System:插片式金(jīn)屬牆闆
Number:ms-W-950
Panel size:
金(jīn)屬闆 13mm(≥0.8mm鋼闆+12mm石膏闆)
13mm蜂窩鋁闆、13mm(≥0.8mm鋼闆+瓦楞)
18mm(≥0.8mm鋼闆+蜂窩芯+12mm石膏×闆)
系統厚度:≥50mm
模塊寬度:≤1200mm
系統高(gāo)度:常規3000mm
材質:鋼
模塊縫隙:0mm
天龍骨尺寸≥20mm,地(dì)龍骨尺寸≤60mm